IANNELLA family addition
JASON K. ADAMSKI GENERAL CONTRACTING
Description: The Iannella family hired Jason K. Adamski General Contracting to remodel their home & add an addition to the house. Initially, the clients were hesitant and unsure about the project, as they had difficulty visualizing the final product. Through numerous design iterations and meetings with the clients, we were able to present drawings and renderings that helped cultivate understanding and made the client excited about their project. The house is currently under construction and will be completed in early 2026.
Programs Used: Revit, Photoshop, Enscape
Year: 2024
Konz FamiLy - Bathroom
JASON K. ADAMSKI GENERAL CONTRACTING
Description: The Konz family hired Jason K. Adamski General Contracting to remodel their Bathroom. After conversing with the clients and understanding what their lifestyle requires, I was able to design and render several iterations of the project, which were revised and edited to fit the client's desires.
Programs Used: AutoCAD, Revit, Photoshop
Year: January 2019
Hatton Family - Bathroom
JASON K. ADAMSKI GENERAL CONTRACTING
Description: The Hattons hired Jason K. Adamski General Contracting to remodel their Bathroom. After conversing with the clients and understanding what their lifestyle requires, I was able to design and render several iterations of the project, which were revised and edited to fit the client's desires. Once finalized, the drawings were submitted for review and approval for permits.
Programs Used: AutoCAD, Revit, Photoshop
Year: February 2018
Griffin Family - entertainment center
JASON K. ADAMSKI GENERAL CONTRACTING
The Griffins hired Jason K. Adamski General Contracting to help them come up with a custom solution for their entertainment center in their living room. In order to provide them many options, I created renderings and elevations of different style shelving. There were several modificatons until they decided they really liked one of the options. Once the family was satisfied with the idea, Jason and his crew custom built the cabinetry and installed it.
Programs Used: AutoCAD, Revit, Photoshop
Year: January 2019
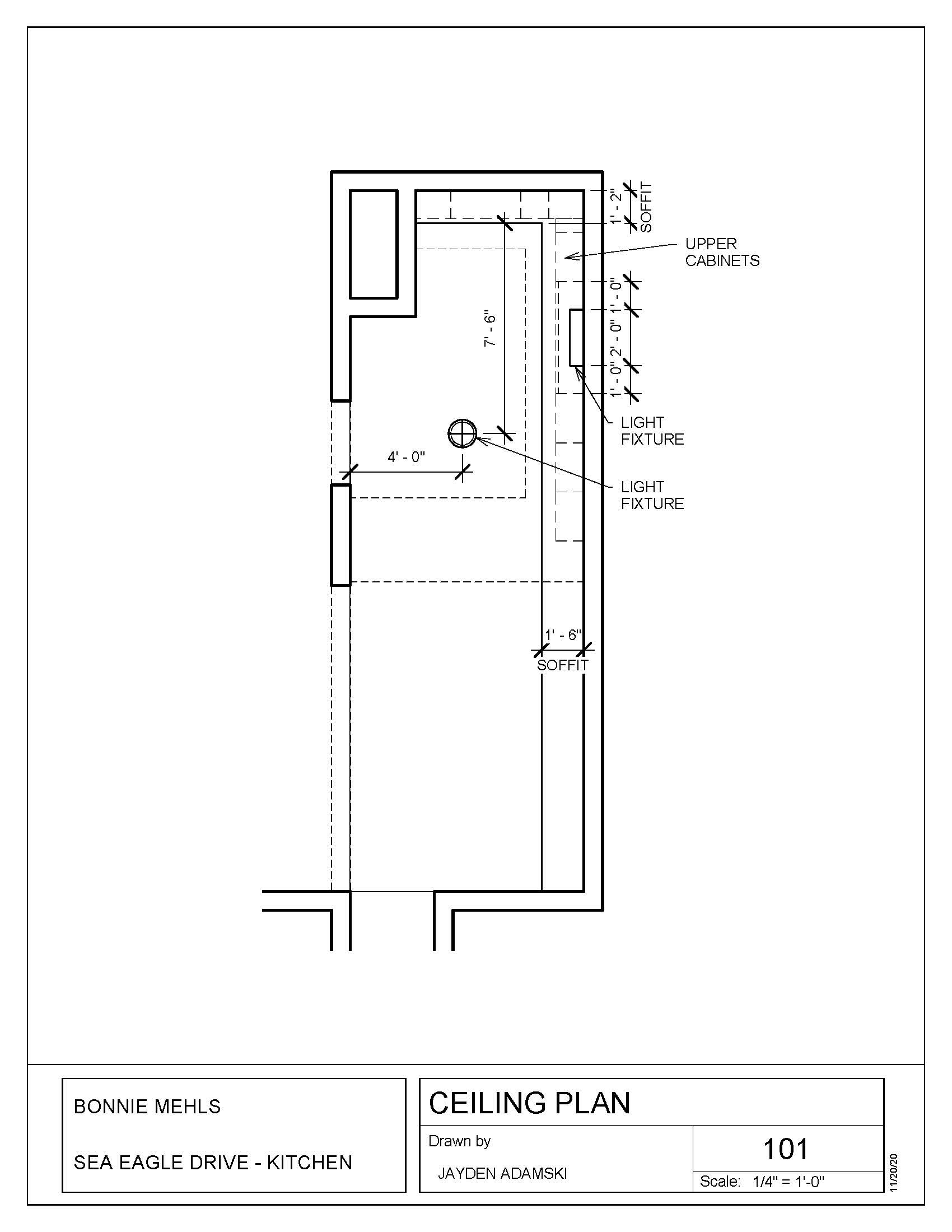
BONNIE MEHLS - DELAWARE RESIDENCE
JASON K. ADAMSKI GENERAL CONTRACTING
Bonnie Mehls hired me to produce drawings for permitting and design purposes at her condo in Delaware. She asked for specific measurements, a power plan, a ceiling plan, and several other diagrams. In order to provide her the most accurate drawings, I took a trip to the residence and was able to measure and document the space as requested. The drawings were later used for permitting and a light remodel.
Programs Used: AutoCAD, Revit, InDesign
Year: November 2020
Back to Top