Job Description:
- Used Revit to create 3D models of new and existing projects
- Developed company’s standards for drawing sets and details in Revit
- Responsible for all phases of over 30 projects
- Created renderings using Revit and Photoshop
- Created/organized Revit template and components for projects
- Created and organized standard Revit families for projects
- Advised on newly selected materials and assisted in updating palette
- Traveled to and measured over 30 locations
- Assisted in developing new organization system for digital/physical file storage
- Met with construction team regularly to collaborate and track projects
- Used Revit to create 3D models of new and existing projects
- Developed company’s standards for drawing sets and details in Revit
- Responsible for all phases of over 30 projects
- Created renderings using Revit and Photoshop
- Created/organized Revit template and components for projects
- Created and organized standard Revit families for projects
- Advised on newly selected materials and assisted in updating palette
- Traveled to and measured over 30 locations
- Assisted in developing new organization system for digital/physical file storage
- Met with construction team regularly to collaborate and track projects
Programs Used: Revit, Autocad, Photoshop, InDesign, Blue Beam
Time: December 2020-Present
Title: Project Architect
DISCLAIMER: ALL PROJECTS SHOWN ARE THE PROPERTY OF RUTTER'S
Rutter's Store #66 in Carlisle, PA was remodeled in 2021. During the approval process, we wanted to explore finishes and customer experience before the project commenced. Revit and Photoshop were used to create renderings in order to give a good idea of what the space would look and feel like.
BEER CAVE
BEVERAGE AREA
DINING AREA
Rutter's VGT Stores
Rutter's #28 in Red Lion, PA required land development plans and 3D rendered views of the exterior of the building. Using Revit and Photoshop, detailed drawings and basic renderings were created.
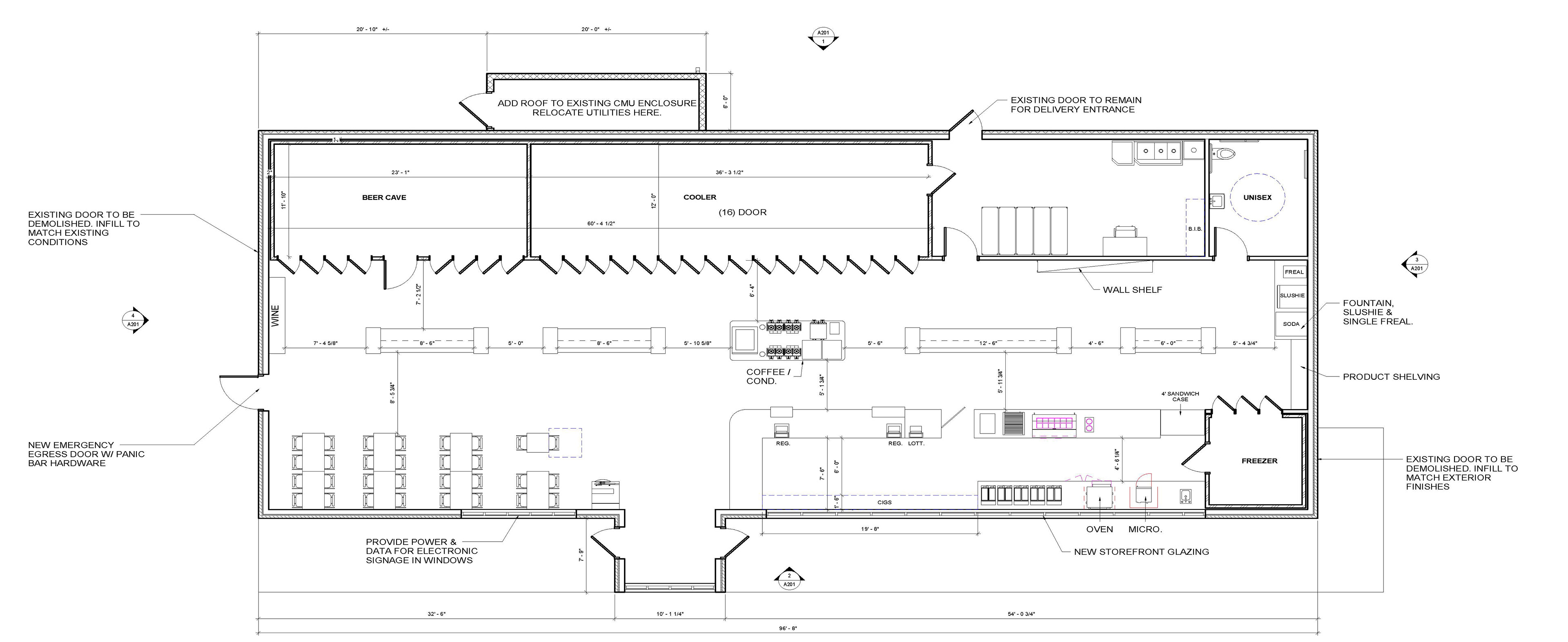
FLOOR PLAN WITH NOTES
ELEVATIONS WITH NOTES
PERSPECTIVES WITH NOTES
While re-designing Rutter's #42 in Stewartstown, PA, management was unsure how they wanted to proceed with Sharpline - an exterior component used on Rutter's fuel canopies and buildings. In order to aid in making a decision, renderings of the exterior showing 2 different options were provided using Revit and Photoshop.
LEFT: OPTION 1 PERSPECTIVES - RIGHT: OPTION 2 PERSPECTIVES
Rutter's #21 in Manchester, PA is currently being redesigned in 2021. In order to provide details to our consultants at Sharpline Converting Inc., exterior renderings, elevations, and a roof plan were created and provided for estimating.
EXTERIOR PERSPECTIVES
EXTERIOR ELEVATIONS AND ROOF PLAN